Top: Diagram of the stage setup for the 2014 performance of Gloria—A Pig Tale in the Grace Rainey Rogers Auditorium. All diagrams courtesy of Met Museum Presents. Bottom: The full production comes to life on stage. Photo © Paula Lobo
«Over the past three years, Met Museum Presents has produced a range of exciting and unique performances throughout The Metropolitan Museum of Art. While the audience can always count on an incredible concert involving talented artists, they may not be aware of the many technical challenges involved in making these events come to life—including lighting, sound, and managing the audience members in the galleries. I recently sat down with Kevin Kenkel, technical manager, and Thomas Mulhare, assistant manager of front of house, to find out more about their detailed production process.»
William Burns: Where does the production process begin?
Kevin Kenkel: It really depends on who is involved in the event. If we invite artists to perform here at the Met, they will send us a rider listing what they need to perform. We will then accommodate them by providing what they need for the show, and work with the space in which they will be performing. Sometimes they will already have everything they need, and we will mostly be there as support, to make sure that the art is not damaged and to facilitate the infrastructure.
Thomas Mulhare: I will be told a week or two in advance which shows are happening and in which spaces, and I will schedule my staff accordingly to accommodate the audience. Recently, I have been brought into the planning process for next year's productions, where I can give my insight into how many audience members we can realistically fit into a particular space.

Diagram of the Department of European Paintings floor plan showing the specific galleries featured in The Grand Tour held in January 2015

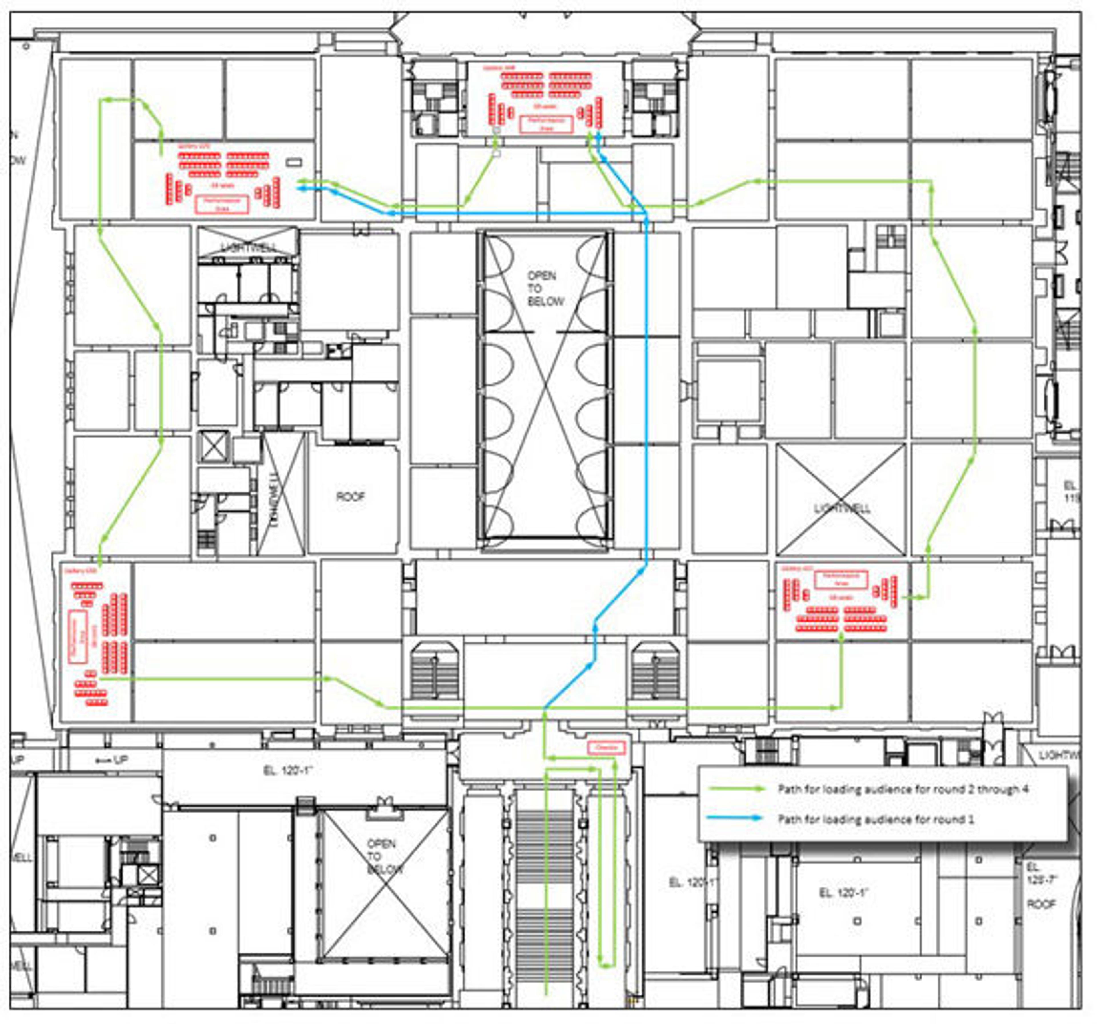
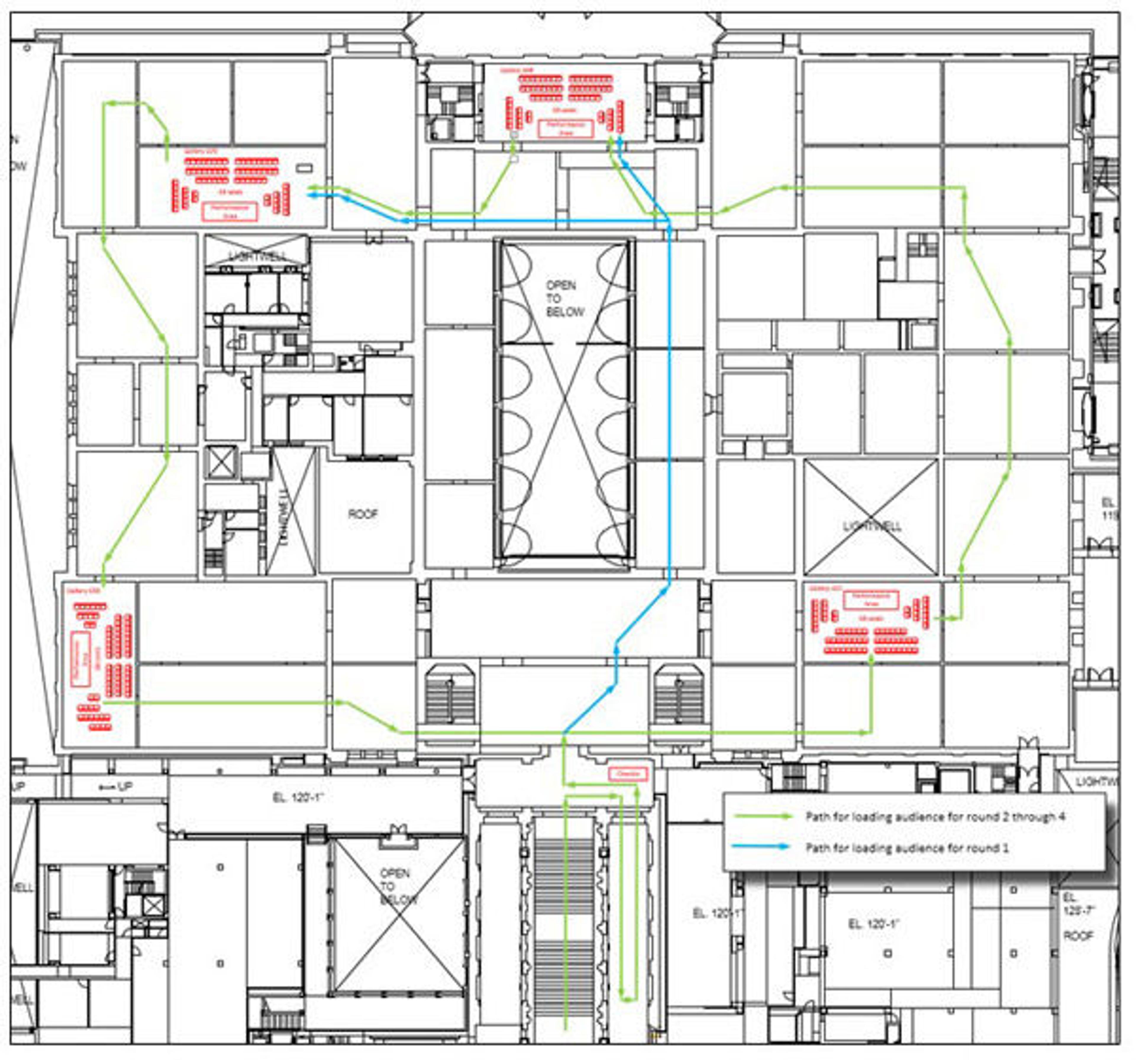
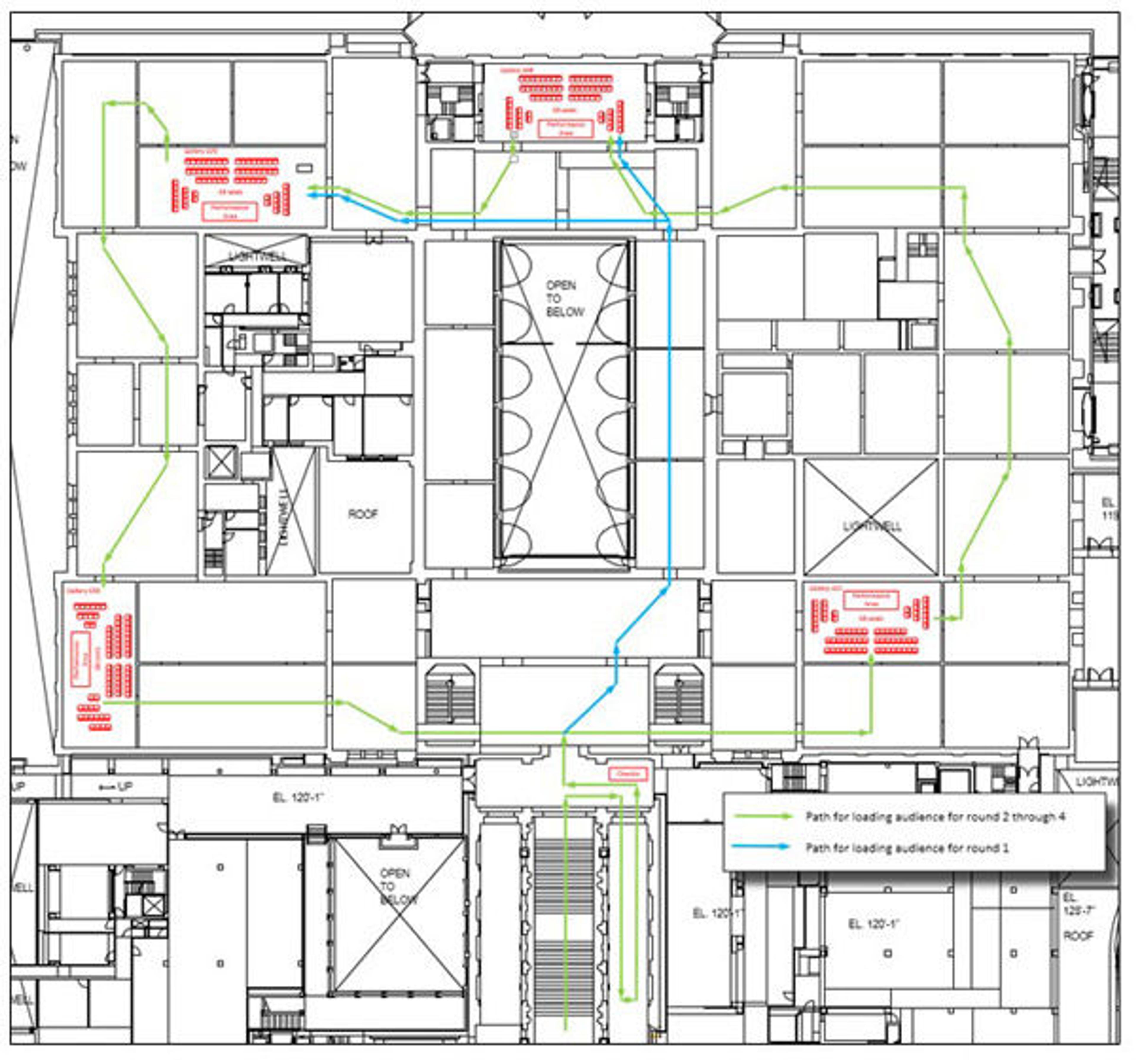
Diagram displaying the audience route and flow of The Grand Tour
William Burns: What are some of the challenges you experience when producing a performance in the galleries?
Kevin Kenkel: When it comes to the equipment we use, it really depends on what the curators say we can and can't have in the space. We create detailed diagrams of what we would like to do in order to give them a better understanding of what we plan on using.
Thomas Mulhare: The Met curators are very supportive of what we do in Concerts & Lectures, and give us a lot of room to play in their spaces because that's what we do—we work with performers to create cool experiences for the audience. There is also a lot of pressure to have events in the galleries because it is a very experimental idea and it is something that hasn't really been done before in the Met's history.
William Burns: What kind of challenges do you face for events in The Temple of Dendur in The Sackler Wing?
Kevin Kenkel: The thing about that space is that it's really bad for sound, since it was built to preserve the Temple and not as a place to hold performances. The ceiling is very high, so the sound bounces around the room. Certain performances such as Drone Mass work very well in that space because the sound is very loud and is meant to project. Other performances, like a jazz band, can run the risk of the sound being carried away. We try to balance the sound by positioning some of our speakers about a hundred feet back from the stage and try to have the sound absorbed by the audience, rather than bouncing off the walls.
Thomas Mulhare: The sound in the space is the biggest challenge, although we get away with it because people are in awe of where they are, and that is what that space is meant to be.

Top: Diagram of The Temple of Dendur with a proposed layout of staging, sound, and light boards for Nrityagram, held on January 10, 2015. Bottom: 3D image of the production setup
William Burns: From a production point of view, where would you like to have a performance in the Met?
Kevin Kenkel: I would really like to have a performance in the Astor Chinese Garden Court. I think we could do a lot with that space.
Thomas Mulhare: We had a really cool performance in the Astor Court during Jazz & Colors, and I would like to see something like that in there again. I would also really like to have a concert on the rooftop garden. The location would be incredible for a jazz band.
Related Link
Met Museum Presents Blog: "Daring Performances in Iconic Spaces: A 2015 Met Museum Presents Itinerary"